Himachal Pradesh
Dangkhar















The ancient monastery of Dangkhar
Coordinates of the site: 32° 5’21.32″ northern latitude and 78°12’44.76″ eastern longitude, at an altitude of 3820 meters.
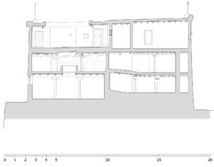
The village of Dangkhar is located on the eastern side of the Spiti River, about 21 kilometres (airline) south-east of Kaza, which is the main place of the remote Spiti Valley in the Lahaul and Spiti district of the Indian state Himachal Pradesh. The ancient monastery comprises several buildings situated on a steep rocky cliff on the Western side of the settlement, overlooking the confluence of the Spiti River and the Pin River. The monastery’s main building consists of various rooms whose structure has changed over the centuries. The tower above the main building has a staircase that leads to the Upper Temple on the top of the bold cliff. Today an additional fortified path leads to the Upper Temple. There are two more single-storey structures in front of the main buildings. A museum room is situated in front of the entrance. The adjoining kitchen can be accessed from the courtyard. The main building consists of 31 rooms on four different levels including an inner courtyard on the upper floor. The assembly hall or Dukhang is located on the first floor in the rear part, three chapels are in the southeast of the building. Another sacred room can be found in the north of the third floor, whereas the so-called meditation cave lies in the northwest of the third floor. At the foot of the rock, there is an ancient gateway chörten that was obviously part of the original ensemble. The chörten’s upper part has been renewed. The building documentation proves that the main building was built in different phases. Analysing the plans, we can deduct that the entire complex consists of three buildings that originally were separate. In the centre, we can find the single-storey assembly hall with its typical skylight. An additional group of chörten in front of the ascending rock is located on the roof of the assembly hall. This original configuration has been extended in various phases until the present day. The fact that the construction was not erected all at once is responsible for the building’s structural problems when it comes to statics. The adding of rooms and storeys has created extra load, sometimes ignoring the principle of load transfer or lacking the necessary technical knowledge, or both. These insights, combined with a detailed analysis of all other damages, are fundamental for an effective and encompassing restoration.
Markus Weisskopf: http://savedangkhar.com/project.html Cf. Neuwirth & Auer 2013. The Ancient Monastic Complex of Dangkhar. Buddhist Architecture in the Western Himalayas – Vol. 1. Graz: Verlag der Technischen Universität Graz. Open Access E-Book.
Interior



























2D Plans


















Spatial model
Photomontages

























More from






















